Watch Hill Proper Bourbon Bar Releases Layout and Renderings and Announces Prominent Industry Leading Members – American Whiskey News

Watch Hill Proper bourbon bar releases layout and renderings and
announces prominent industry leading members
Bourbon enthusiasts have until June 15 to sign up as a Founding Member
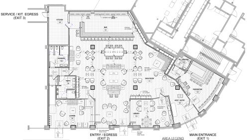
PROSPECT, Ky. (June 7, 2021) – Watch Hill Proper, Louisville’s first premier bourbon club located in Norton Commons, is releasing the layout and renderings for their 5,200 sq. ft. location anticipated to open in the first quarter of 2022. Both the layout and renderings were provided by Design + Inc., an award-winning architectural and design firm that specializes in the restaurant industry.
The club will feature The Fermenter – a waiting room with a smaller bar – two private rooms, a Member Lounge, and a Library. The Member Lounge will be accessible to members during the day, before official opening hours of the club. The Library will be a place for members to relax and expand their bourbon knowledge. The main bar will be in a large open room with nearly 1,000 bottles of bourbon behind the bar. A unique bourbon barrel ceiling feature will be a focal point of the club, with barrels located throughout the club.
“We are really pleased with the design process so far and seeing our vision take shape,” says co-founder Josh Howes. “We want a comfortable space that feels like a big living room yet reminds you of a bourbon distillery. When you first walk inside you will know you are in a special place, and I think our design will achieve that goal.”

Watch Hill Proper began accepting membership applications through its website for all membership types on May 12 of this year. Industry leaders affiliated with high quality brands including Four Gate, Beam Suntory, Woodford Reserve, Heaven Hill, Angel’s Envy, Castle & Key, Four Roses, Limestone Branch and Peerless have already joined the club. Many authors and influencers have also joined, and more are being added daily. “We have received tremendous support from the entire bourbon industry,” says co-founder Josh Howes, “and we can’t wait to promote their brands through our club events.”
“One of the aspects of Watch Hill Proper we are most excited about is the support from the community as well as the bourbon industry,” says co-founder Tommy Craggs. “We have a lot of Bourbon Industry members already who are partnering with us to bring special events to the club. They have been given a special page on our website because they will help make sure Watch Hill Proper will be an exciting place to visit on a regular basis.”

Membership applications submitted by June 15, 2021 will have Founder Member status with additional perks including the ability to attend barrel picks, behind-the-scenes distillery tours in 2021 and 2022, priority access to rent a spirit locker, as well as one complimentary bourbon tasting a month. Membership will be capped to ensure a premier experience for the members. The club will be open to the public, but members will have reservation privileges, receive a 20% discount on drinks, and have the ability to attend special events amongst more than a dozen additional privileges.
Watch Hill Proper not only plans to deliver a large selection of bourbon and whiskey cocktails, but Howes states that prices will be extremely competitive. “One of the questions I am asked the most is what are our prices? We have posted some sample drink prices on our website because we want our members, and potential members, to know that our goal is to provide one of the best values in the city of Louisville. We want our guests to try lots of new bourbons and we will provide a large selection at good prices. Plus, every week members will have access to our ‘break-even pour’ which is a bottle that we select to be priced by the drink at our cost. Not many bars are willing to do that.”
For membership details, please visit the Watch Hill Proper website at www.watchhillproper.com or contact Bev Reese at (502) 230-1982.

About Watch Hill Proper:
Watch Hill Proper is Louisville’s first premier membership bourbon club anticipated to open early 2022. Our purpose is to be a community built around a common interest – bourbon. Our goal is to be a community of ambassadors for Kentucky’s signature industry. And do it in style. For more information about Watch Hill Proper, or to apply for membership, visit www.watchhillproper.com.








Hugely floral and perfumed on the nose, with rose petals, violet candies, and dried orange peel. This is the Gewürztraminer of American single malts—sweet lychee, laced with sachet aromas that explode as if opening Grandma’s dresser drawer. The palate is more tropical; dried pineapple, canned peach syrup, and spice. This could be polarizing, but it’s utterly captivating and worth a try. (JL, Fall 2017) 



































